东风特商12吨价格
产品优势:
12吨4节臂直臂随车吊优势:
◇无线遥控系统 节省人工,节省成本,视野更开阔,工作效率更高;
◇标配高空座椅 上操作视野开阔;
◇手电一体式操作阀 手动+遥控双操作,遥控器没电,手动仍可以操作吊机,双边操纵;
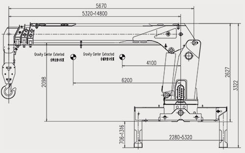
◇4节伸缩臂 工作半径更大,14.8米,能满足客户更高的使用要求;
◇8边形吊臂 减轻吊臂自重,增加吊臂刚度,同时提高伸缩导向性能,结构美观;
◇链条拉锁 强度大,刚性好,不易变形,不易偏摆,不会跳槽,经久耐用寿命高;
◇标配散热器 给液压系统降温,防止因液压油温过高引起的吊机工作效率慢、液压件漏油等问题;
◇一车多用 加配无线遥控器,吊篮,可以起重,拉货,高空作业18米,多一个功能,多一个挣钱的路子;
产品实拍图

吊机参数及作业图


徐州昊意科技有限公司随车吊厂家专业生产2吨,3.2吨,4吨,5吨,6.3吨,8吨,10吨,12吨,16吨直臂式和折臂式无线遥控随车吊,多功能随车吊;
具体价格参数欢迎电联垂询:177 2179 6055(微信同号)